
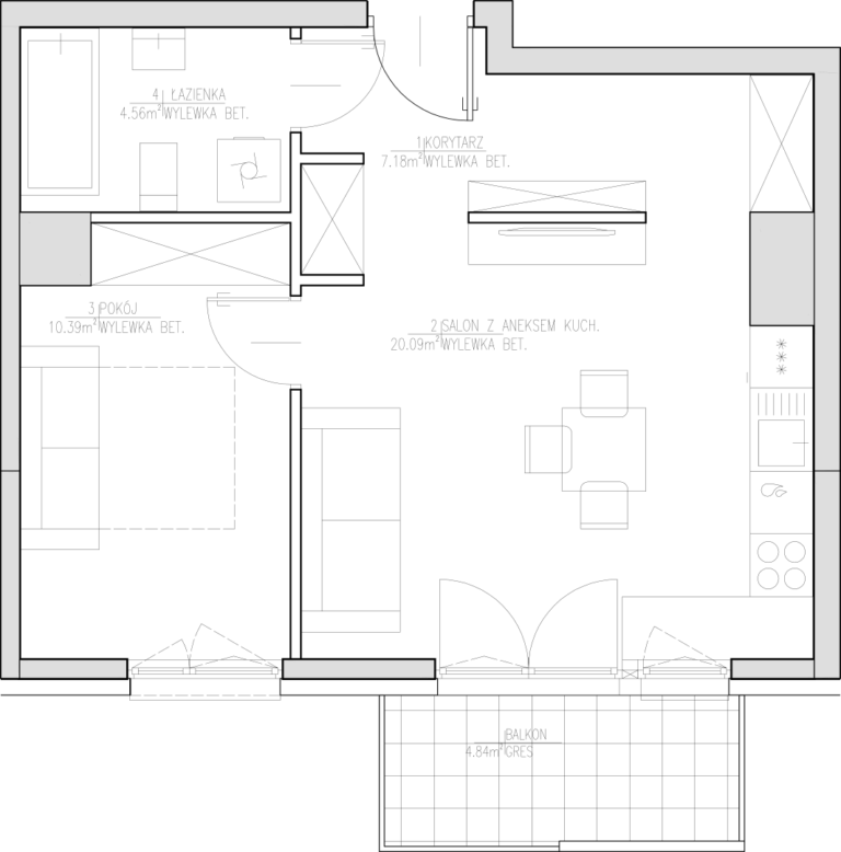
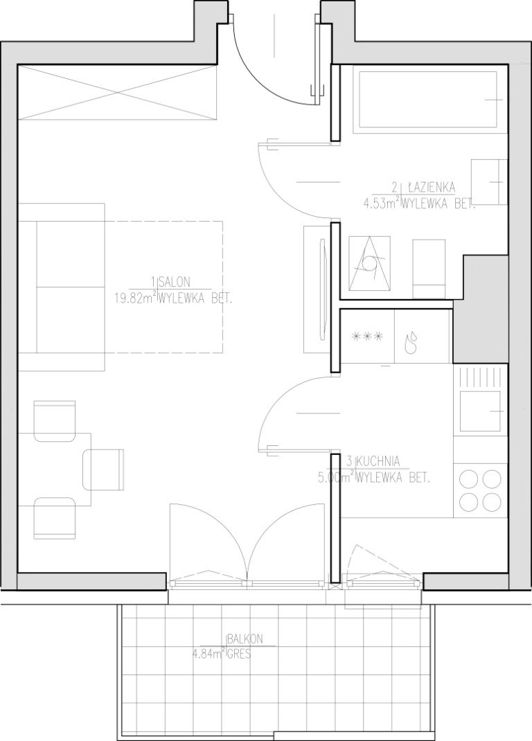
Dlaczego Sadyba uchodzi za jedną z najbardziej spokojnych części Warszawy?
Sadyba uchodzi za jedną z najbardziej spokojnych części Warszawy, ponieważ łączy kameralną zabudowę, dużą ilość zieleni oraz ograniczony ruch tranzytowy. To obszar, który od lat rozwija się w sposób uporządkowany, bez intensywnej presji deweloperskiej typowej dla centralnych dzielnic miasta. Mieszkania w Warszawie na Sadybie wybierają osoby, które cenią ciszę, poczucie prywatności oraz stabilne sąsiedztwo. Charakter tej lokalizacji znacząco różni się od dynamicznych rejonów Mokotowa, co czyni ją wyjątkową w skali







